








villa dvt
status
gereed
programma
wonen
constructeur
Bartels
gevelbouw
Metadecor
fotografie
Merel van Beukering
Aan de rand van Schuytgraaf, een buitenwijk van Arnhem, is deze vrijstaande woning ontworpen voor een opdrachtgever met een bijzondere woonwens: een uniek en modern huis met een interieur met ‘loftkwaliteit’. Deze woonwens heeft geresulteerd in een specifiek minimalistisch ontwerp opgebouwd uit grafische lijnen in zowel gevel als plattegrond.
De buitengevel is opgebouwd uit aluminium strekmetalen platen welke voorzien zijn van een speciale coating die schittert en verkleurd door de veranderlijke zoninstraling. Scherpe aluminium kaders in de gevels accentueren de gevelopeningen en richten de blik van de bewoners zorgvuldig naar hun omgeving.
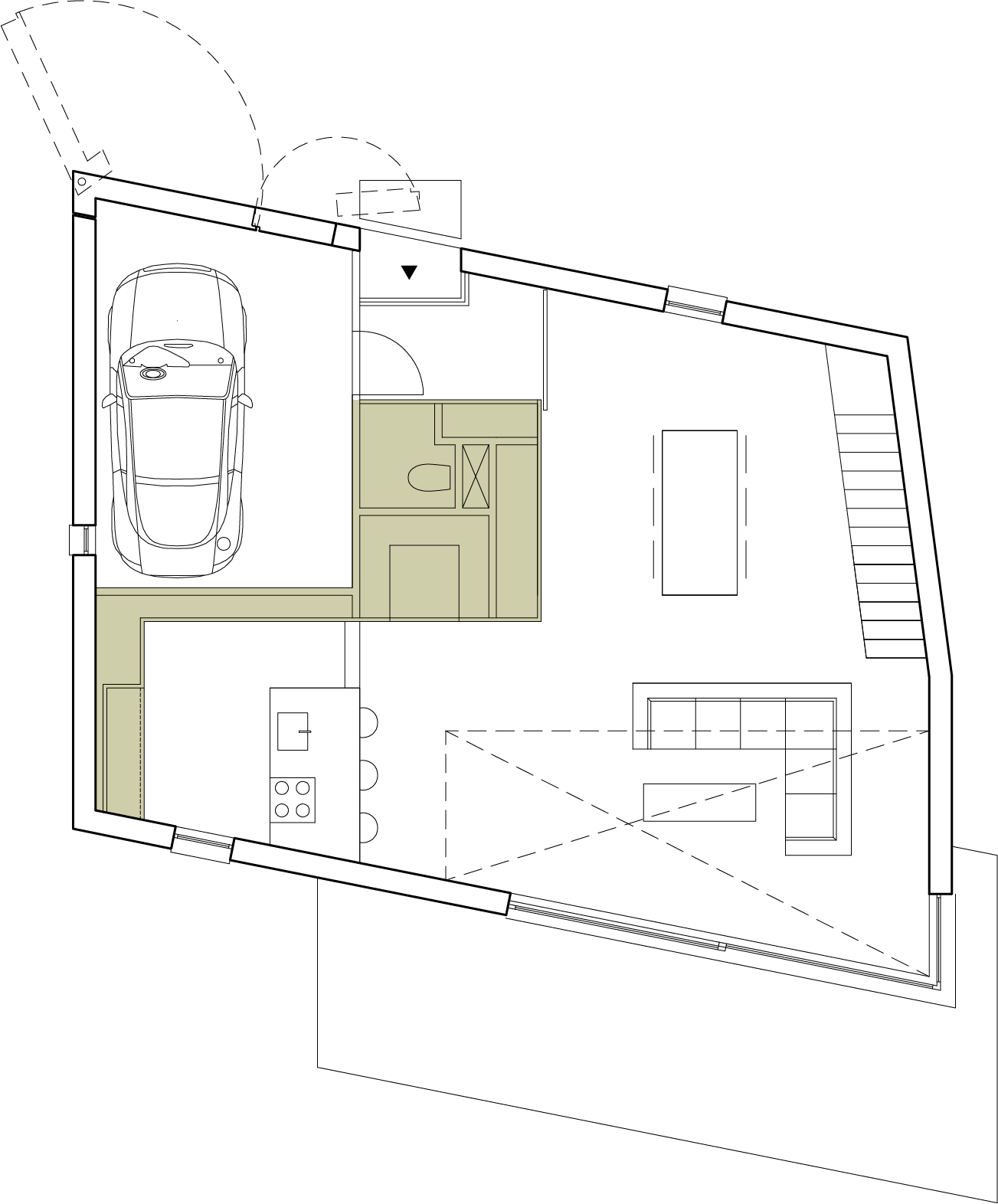
De woning heeft een ruitvormige plattegrond die voortkomt uit de bijzondere vorm van het perceel waardoor de voor- en achtergevel schuin met de straat meelopen. Deze afwijkende gefacetteerde vorm heeft consequenties voor het interieur die zo zijn ruimtelijke en specifieke kwaliteit krijgt. Het interieur is rustig en wordt gekenmerkt door een enorme wandkast welke als een wandtapijt het interieur kleur brengt en die de bewoners op verschillende wijzen kunnen gebruiken.

plattegrond

isometrie legplan gevelpanelen